Eurohause služby

Naše služby

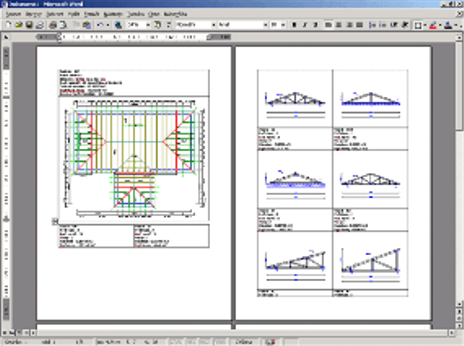
02.

Výroba konštrukcií

Drevené priehradové väzníky so styčníkovými doskami od firmy Mitek sú vo svete veľmi rozšírené a obľúbené. V našich končinách voči nim ale panuje istá nedôvera prameniaca z nevedomosti.

Priehradové väzníky MITEK:

Väčšina ľudí má povedomie o tom, že väzníky sú akási prútová konštrukcia, ktorá má síce ľubovoľný tvar, ale žiadny využiteľný priestor. Opak je však pravdou. Okrem takmer neobmedzeného tvaru možno výplet väzníka v drvivej väčšine prispôsobiť tak, aby priestor strechy mohol byť využívaný ako podkrovie alebo ako pôda (úložný priestor).

Masívne Konštrukčné drevo KVH:

Masívne Konštrukčné drevo KVH je sortiment spoločnosti Eurohause s.r.o. Piešťany. KVH je masívne Konštrukčné drevo (KVH) sú profily z ihličnatého dreva (prevažne Smreka) pre použitie v moderných drevených stavbách. KVH profily sú štvorstranne hobľované a majú zrazené hrany. Profily sú technicky vysušené na vlhkosť 15 ± 2%.

Podľa účelu použitia sa rozlišujú dva druhy KVH profilov, ktoré sa od seba odlišujú iba vlastnosťami povrchu: KVH-Si pre pohľadové konštrukcie a KVH-NSi pre nepohľadové konštrukcie. Základné vlastnosti - tvarová stálosť: Za účelom minimalizácie deformácií dreva ako aj súvisiacich negatívnych dôsledkov v podobe zosychania a napučania, pre KVH stanovená požiadavka na vlhkosť 15 ± 3%. Táto hodnota je v priebehu výroby trvalo kontrolovaná. Pri uvedenej vlhkosti je drevo prirodzene chránené proti napadnutiu drevokaznými škodcami.

Použitím zubovitého spoja je možné vyrábať profily až do max. dĺžky 13 m. Dĺžkovým nastavovaním jednotlivých profilov pritom nie sú negatívne ovplyvnené mechanické vlastnosti dreva. Kvalita prevedenia a pevnostné vlastnosti zubovitých spojov sú miestom trvalého sledovania pri výrobe. Požiadavky na prevedenie a kontrolu zubovitých spojov sú uvedené v STN EN 385: 2002.

Používané lepidlá: Lepenie zubovitých spojov sa vykonáva polyuretánovými lepidlami bez použitia rozpúšťadiel. Podľa klimatických podmienok v mieste použitia konštrukcie sa pri výrobe rozlišujú lepidlá typu I a II. Požiadavky na použitie lepidiel pre lepenie zubovitých spojov sú uvedené v STN EN 301: 2007.

Masívne Konštrukčné drevo KVH sa používa pre nosné konštrukcie rodinných domov a striech firmy Eurohause s.r.o. Piešťany.

Automatizovaná píla EASY CUT 828 PLUS:

Jedna z najmodernejších a najpresnejších píl na svete so štyrmi osami a laserovým presným meraním. Presné rezanie podľa projektu, ktorý je načítaný zo statického softvéru. Píla si načíta všetky prvky, ktoré idú na zákazku. Automatické nastavovanie píly pred každým rezaním. Píla si robí sama korekciu všetkých štyroch osí.

Pokiaľ neprejde korekcia správne, píla nepovolí rezanie a je nutné hľadať chybu, preto je každý prvok narezaný úplne presne. Dĺžky, uhly a náklopy kontroluje laser. Pri začatí samotného rezania sa potvrdí automatické zachytenie dreva, zapne tlačiareň, ktorá na každý prvek napíše číslo prvku aj s kódom väzníka, do ktorého daný prvek ide.

Ochrana dreva - Impregnácia:

Ochrana dreva je dnes už nevyhnutnou súčasťou drevárskej výroby, aj preto sa naša spoločnosť rozhodla pre plne automatickú impregnačnú linku od firmy „Vyvos Cz". Zariadenie je schopné na jednu dávku naimpregnovať rezivo do hmotnosti 5000 kg pri maximálnej dĺžke až 8000 mm. Výhoda proti natieraniu je že rezivo je ponorené v impregnačnej látke trvale podobu stanovenú v závislosti od vstupnej vlhkosti reziva Druh použitého dreva: smrek Rozmery skušobných prvkov 20x20x100 mm Koncentrácia aplikačného roztoku 10% Ako impregnačná látka je použitý prípravok „Bochemit QB Profi" Účinné látky v prípravku 20% kyselina bóritá a 20% Alkylbenzyldimetylamónium chlorid. Ochrana je účinná plesniam, hubám a drevokaznému hmyzu.

Prípravky na ochranu dreva a stavebného materiálu proti plesniam, drevokazným hubám a drevokaznému hmyzu. Povrchová ochrana dreva napadnutého drevokaznými hubami. Najskôr je nutné odstrániť (obsekať, obrúsiť) napadnutú časť dreva až na zdravé drevo. Povrch dreva treba očistiť a odmastiť tak, aby prípravok mohol dobre prenikať do dreva. Bochemit QB sa rozriedi na 20% roztok, t.j. 4 diely vody a 1 diel Bochemitu QB. Potom sa urobí dvojnásobný náter alebo postrek, a to tak, aby dosiahol príjem 50 g Bochemitu na 1 meter štvorcový ošetrenej plochy (pri príjme 250 ml aplikačného roztoku na meter štvorcový).

Povrchová ochrana dreva Robí sa náterom alebo postrekom pri teplotách +5 stupňov až +30 stupňov tak, aby povrch dreva bol Bochemitom QB dostatočne zmočený, ale aby boli na minimum obmedzené straty stekaním, rozprášením alebo rozstrekom. Druhý a ďalší návrh resp. postrek sa robí po zaschnutí predchádzajúceho (4-24 hod.). Potrebný počet vrstiev závisí na kvalite opracovania dreva. Na hrubo opracované stači jeden náter (resp.postrek). Drevo zabudované v triede ohrozenia 3. je možné ošetriť náterom alebo postrekom za prepokladu, že ošetrená plocha bude následne prekrytá krycím lakom.

Ochrana dreva máčaním. Ochrana dreva máčaním sa vykonáva vo vhodných nádržiach (vaniach). Údaje o koncentráciách a minimálnych príjmoch nájdete v tabuľke. Životnosť ochrany Vzhľadom na charakter prípravku sa prepokladá dlhodobá ochrana min. 10 rokov pre 3.triedu ohrozenia a časovo neobmedzená pre 1. a 2.triedu.

1. Ošetrenie nového dreva (strešné konštrukcie, stavebné drevo) pod strechou na ošetrenie dreva sa použije prípravok Bochemit QB, spolu s Bochemitom Lazur na extrémne ohrozené miesta (pomúrnice, záhlavia a čelá trámov). 2. Ošetrenie dreva napadnutého drevokazným hmyzom Na sanáciu dreva napadnutého drevokazným hmyzom sa použije Bochemit Plus. 3. Ošetrenie dreva napadnutého drevokaznou hubou a plesňami Najprv použijeme prípravok Savo proti plesniam s následným použitím prípravku Bochemit QB. Sanácii predchádza očistenie dreva od nečistôt, mastnoty a skorodovaných častí.

4. Ošetrenie dreva v exteriéri, na ktoré pôsobia poveternostné vplyvy. Použiť prípravok Bochemit Lazur, prípadne Bochemit QB s krycím náterom. Taktiež sa môže použiť Bochemit QB bez krycieho náteru za prepokladu, že bude použitá aplikačná technológia dlhodobého máčania (24 hodín). 5. Preventívne ošetrenie muriva proti plesniam Použiť prípravok Bochemit QB a následne je možné murivo či omietku natrieť maliarskym náterom. 6. Ošetrenie muriva napadnutého plesňami. Použiť prípravok Savo proti plesniam, a následne previesť preventívnu ochranu prípravkom Bochemit QB. 7. Sanácia muriva napadnutého drevomorkovou domácou. Najprv použiť prípravok Savo proti plesniam, potom urobiť injektáž infikovaných škár prípravkom Bochemit QB.

Drevo pred impregnáciou Povrch dreva musí byť zbavený zvyškov starých nánosov, nečistôt, zvyškov kôry a lyka, aby sa docielil dokonalý styk, zmáčanie ochranným roztokom a možnosť penetrácie účinných zložiek prípravkov radu Bochemit do drevnej hmoty. Z povrchu dreva musia byť tiež odstránené zvyšky biologicky (drevokaznými hubami) alebo chemicky (rozvláknenie) poškodeného dreva. Všetky informácie o riedení a spotrebách prípravkov získate v technickom popise jednotlivých výrobkov v produktovom katalógu.

Styčníkové dosky MITEK:

Styčníkové dosky s prelisovanými tŕňmi slúžia predovšetkým k efektívnemu spájanie drevených väzníkov pri výrobe strešných konštrukcií, pri výrobe celodrevených alebo kombinovaných halových objektov, pričom aj v ďalších oblastiach použitie, pri spájaní drevených konštrukcií. MITEK styčníkové dosky sú jednoducho najlepšie na trhu. Keď skombinujete vlastnosti tŕňov, náročnými testami doložené vlastnosti ocele spôsob balenia dosiek, výsledkom je najdokonalejší výrobok na trhu styčníkových dosiek.

Dosky sú vyrobené z oceľového plechu akosti S 250 GD žiarovo pozinkovaného v prevedení Z 275 podľa EN 10326. Oceľový plech obsahuje sadu integrálnych klincov ktoré po prerazení ohnutí kolmo vyčnievajú z plechu. Styčníkové dosky GNA20-MIT, T150-MIT M14 sa používajú ako mechanické upínacie prvky pre spoje u konštrukčných komponentov z dreva. Konštrukčné komponenty musia byť navrhnuté v súlade so statickým výpočtom.

Lisovanie konštrukcií:

Kontrola rozmerov väzníka, jeho geometrického tvaru a uloženia styčníkových dosiek sa prevádza štandardnými meradlami, (zvinovací meter, uhlomer, uholník, posuvné meradlo, oceľové pásmo) ktoré sú kalibrované. Vlastné lisovanie sa prevádza pomocou portálového lisu, ktorý sa dá nastaviť na štyri stupne lisovacieho tlaku. Maximálny tlak je 500 kN. Lis je ovládaný ovládaním jedným pracovníkom, ktorý nastaví požadovaný tlak a podľa hrúbky lisovaných prvkov koncové spínače, pomocou ktorých sa zabráni rozdrveniu dreva a zaistí sa správne zalisovanie všetkých styčníkových dosiek.

Systém „MITEK" umožňuje vyrábať konštrukcie s maximálnym rozpätím 30 m, ponúka veľmi široké možnosti tvarov a použitia. Ďalším krokom pri výrobe drevo-konštrukcií je zlisovanie konštrukčného prvku t.j. väzníka. Väzník je zložený z jednotlivých prírezov na oceľových lisovacích stoloch s pohyblivou platňou, vo vodorovnej polohe. Skladanie vykonávajú dvaja zaškolení pracovníci, ktorí podľa výkresovej dokumentácie vyskladajú tvar budúceho väzníka, skontrolujú jeho rozmerovú presnosť, geometrický tvar, odstránia prípadné zakrivenie a zaistia výrobok excentrickými upínačmi, jeho polohu a tvar.

Nasleduje rozloženie styčníkových dosiek „MITEK". Každý spoj je presne definovaný vo výkresovej dokumentácii, je tu presne zadaný typ a rozmer styčníkovej dosky.

03.

Montáž a preprava

Montáž, prepravu konštrukcií zabezpečuje firma Eurohause s.r.o. EUROHAUSE s.r.o. Piešťany ma vlastnú dopravu na prepravu vazníkov a tak isto aj na prepravu nadrozmerných konštrukcii. Taktiež zabezpečuje aj vykládku a nakládku materialu 20t žeriavom. Menšie materialy krytiny zabezpečuje firma taktiež vlastnou prepravou autom s hydraolickou rukou. Pri montáži firma dodáva kompletnú kotviacu techniku.

04.

Klampiarske a pokrývačské práce

Pokrývačské, klampiarské práce. Predaj strešných krytín plechové, škridlové, PVC fólie, odkvapové systémy. Kompletná realizácia štítových, valbových, pultových a plochých striech.

Kontakt pre klampiarské práce:

Konateľ spol. WOW-GROUP s. r. o.
Bartovič Marco
Mobil: 0948 474 767
Email: marcobartovic1995@gmail.com

Klampiarstvo Logo
05.

Výroba drevostavieb

Moderné drevené stavby navrhnuté podľa európskych štandardov kvality s optimalizáciou investičných nákladov.

06.

Drevosklad - obchod

Komplexný sortiment stavebného reziva a spojovacích prvkov pre profesionálnych stavbárov aj individuálnych zákazníkov.